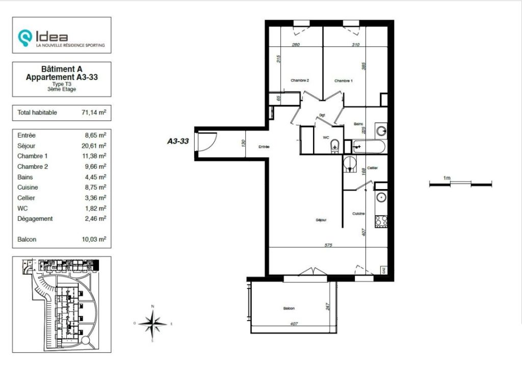
Dans une résidence calme et sécurisée, venez découvrir cet appartement de type T3 situé au 3ème étage composé d’une entrée avec placard, d’un séjour avec accès au balcon de 10 m², d’une cuisine équipée (plaques de cuisson vitrocéramique, hotte aspirante, meubles de rangement), d’un cellier, de deux chambres dont une avec placard et d’une salle de bain avec d’un WC séparé. Le chauffage est individue au gaz.
Deux parkings complètent le bien ainsi qu’un cellier.
Les plus : Espace vert paysager, interphone, portail automatique, ascenseur, résidence sécurisée
Ce bien se situe à proximité de toutes commodités : école, collège, lycée, centre ville ainsi que le métro ligne B station Trois Cocus à seulement 900 m à pied, la ligne de bus 29 dans un rayon de 900 m arrêt Van Dyck).
31200 Toulouse
Sporting Immobilier
Les informations sur les risques auxquels ce bien est exposé sont disponibles sur le site Géorisques : www. georisques. gouv. fr
